大型リフォーム

special

施主様とつくりあげた、南仏プロヴァンスのような世界観のあるヘッドスパサロン

After
施主様とつくりあげた、南仏プロヴァンスのような世界観のあるヘッドスパサロン

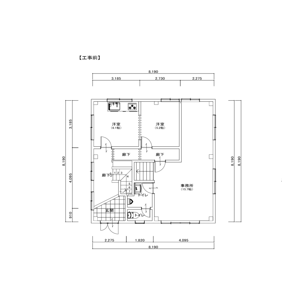
1階が会社の事務所、2階が住居となっている建物で、
数年前に水まわり工事をお任せいただいたOBのお客様から、
再びお声掛けいただきました。

今回は、もともと事務所の休憩室として使われていたスペースを、
息子さんご夫婦が開業される「ヘッドスパサロン」へと改装したいというご相談でした。

A様は、サロンの世界観や色調、照明位置に至るまで、
明確なイメージをお持ちでした。
そのイメージを丁寧に共有しながら、弊社からは構造上の納まりや、
空間に深みを生むプラスαのご提案を行いました。

大工工事・造作工事は弊社が担当し、施工の合間で仕上げとなる内装部分を
A様ご自身が手を動かして進められました。
床や扉の塗装、漆喰の壁仕上げなど、どれも丁寧で美しく、まるでプロのような完成度に驚かされました。

無垢材の床、漆喰のやわらかな表情、落ち着いた照明計画が重なり、
静かに呼吸が整うようなシックで心地よいサロン空間が誕生しました。

工事内容
内装工事・トイレ・洗面工事
お客様名
N様邸
施工エリア
呉市
リフォーム期間
約1ヶ月
費用
約500万円

お客様のお悩み・ご要望

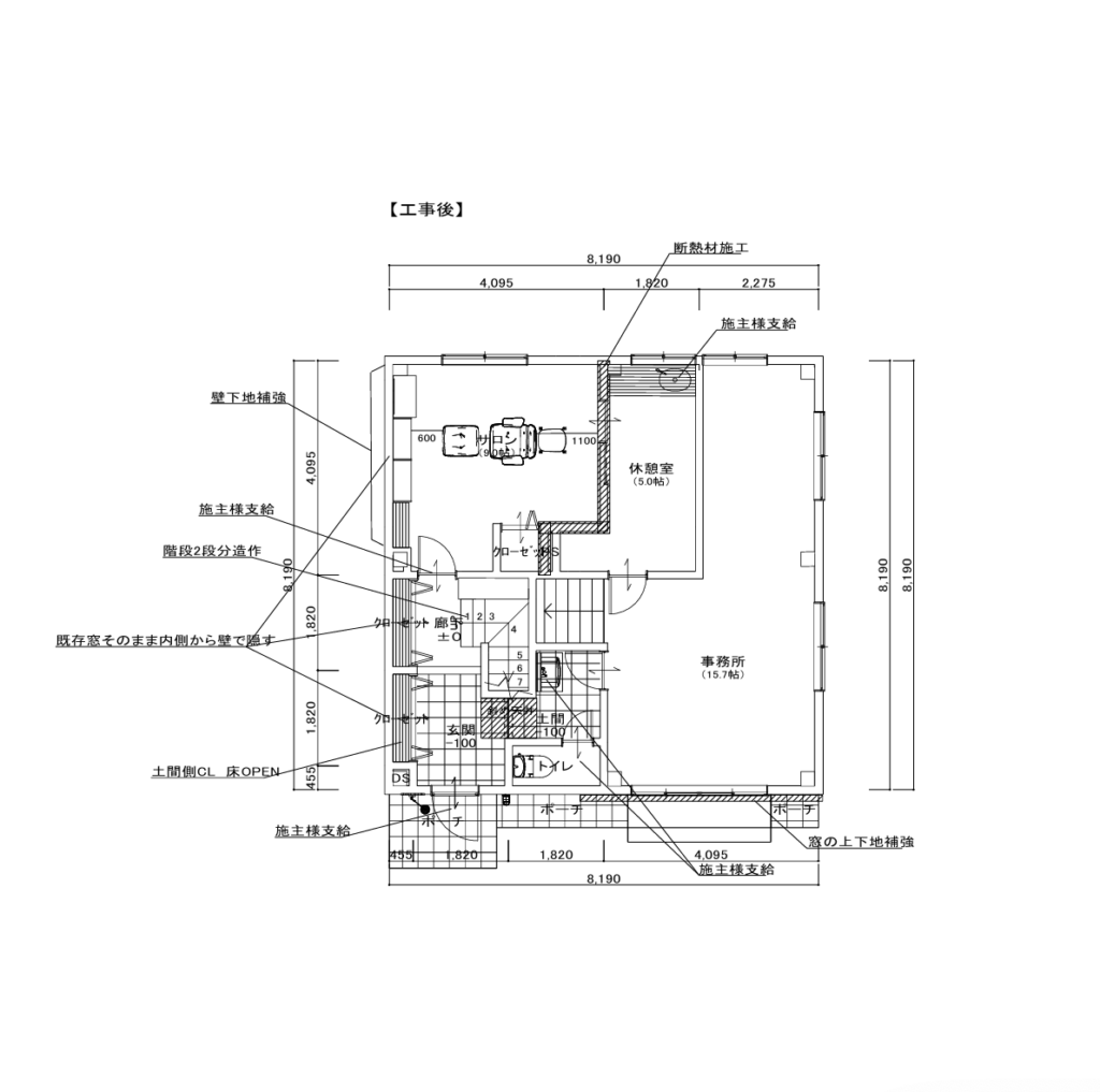
N様は、もともとご家族の事務所の休憩スペースとして使われていた1階の一室を、 ご子息ご夫婦が開業される ヘッドスパサロンへと改装したい とのご相談で来店されました。 「訪れた人が、日常から少し離れて落ち着ける異空間のようなサロンにしたい」 という明確なイメージをお持ちで、 内装の世界観・照明位置・家具の雰囲気までしっかりと検討されていました。 また、N様ご自身が 壁や天井の漆喰仕上げ・床や建具の塗装 など、 仕上げの工程に ご自身の手で関わりたい というご希望がありました。 自然素材の質感や手触りを大切にしながら、 「自分たちの手で育てていくサロン空間」 を目指されていました。

ご提案させていただいた
リフォームプラン

お客様のインテリアイメージを尊重しながら、 素材・動線・施工の納まりまで丁寧に調整しました。 ご提案ポイントは、①床には厚み3cmの杉無垢材を採用し、素足でも心地よく過ごせるやわらかな踏み心地を実現。 ②建具はN様のお好みに合わせ、無垢材+ルーバーデザインをご提案。③RC構造の天井に現れる配管の段差は、色を分けることで気にならないよう仕上げました。 ④トイレは、来客時もご家族も、互いに気兼ねなく過ごせるよう、サロン側・事務所側のどちらからも使える動線に再設計。 ⑤キッチンには給水のみだったため、給湯設備(ゆプラス)を新設し利便性を改善。⑥将来的に棚を追加できるよう、壁の一部に下地補強も行いました。

サロン 施工前

もともとは、事務所の休憩室として使われていました。 サロンに必要な落ち着いた空間を作っていくために、 家具やキッチンなどの設備機器を撤去していきます。

床下地工事

今回の建物は RC構造(鉄筋コンクリート造) のため、 上から無垢材を重ね張りする工法を採用しました。 また、床材の厚みによる 建具や段差の影響が出ないよう、 敷居や框まわり、扉のクリアランスも細かく調整を行い、 自然な納まりになるよう丁寧に施工しています。

間仕切り造作工事

施術室と休憩室を区切るための間仕切り壁を造作しています。 休憩室は、サロン側・事務所側のどちらからも利用できる動線とし、 使いやすさとプライバシーを両立したつくりにしました。

建具工事

収納扉は、イメージに合わせてルーバー建具をご提案・採用。 重ね張りした無垢床や漆喰仕上げとバランスが取れるよう、調整しています。

サロン 完成

  • After
    施主様とつくりあげた、南仏プロヴァンスのような世界観のあるヘッドスパサロン

    シックな色調を基調に、光を抑えた落ち着いた空間に仕上げています。無垢材と漆喰の柔らかな質感が重なり、 施術中に自然と呼吸が深くなるような、静けさのあるサロンです。

  • After
    施主様とつくりあげた、南仏プロヴァンスのような世界観のあるヘッドスパサロン

    RC構造のため天井に既存の配管があり、どうしても段差が発生する部分がありました。そこで、段差をただ隠すのではなく、段で色を切り替えるデザインを採用。視線が自然に流れ、部屋の役割がやさしく分かれる空間構成となりました。

  • After
    施主様とつくりあげた、南仏プロヴァンスのような世界観のあるヘッドスパサロン

    ミシン台は、もともとスタッフの私物でしたが、サロンの雰囲気に合うと感じ、お譲りさせていただきました。N様がカウンターを取り付けてリメイクしてくださり、空間に溶け込む サロンの一部として新たに息づいています。

  • After
    施主様とつくりあげた、南仏プロヴァンスのような世界観のあるヘッドスパサロン

    小物の選び方や置き方にもセンスが感じられます。また、こちらの壁面には、将来的に棚を取り付けられるよう、あらかじめ下地補強を施しています。

休憩室 施工前

サロン側と事務所側のどちらからも使える休憩室です。 もともとは事務所の休憩スペースとして利用されていましたが、 今回の計画にあわせて、空間の役割と動線を見直していきます。

手洗いカウンター造作工事

ベッドが置かれていた窓側のスペースには、 新たに 手洗い用のカウンター を設置しました。 施術前後の動作がスムーズになり、使い勝手が向上しています。

休憩室 完成

  • After
    施主様とつくりあげた、南仏プロヴァンスのような世界観のあるヘッドスパサロン

    休憩室もサロンの雰囲気に合わせて、ラグジュアリーな空間へと整えました。深いトーンの黒い壁が、空間全体を静かに引き締め、上質な印象をつくっています。

  • After
    施主様とつくりあげた、南仏プロヴァンスのような世界観のあるヘッドスパサロン

    既存の配管は水のみで、さらに給湯器が遠いため、お湯が届くまでに時間がかかる状態でした。そのため、給湯設備(ゆプラス)を設置し、手元ですぐにお湯が使えるように改善しました。サロン運営に必要な利便性と、日々の作業性が大きく向上しました。

  • After
    施主様とつくりあげた、南仏プロヴァンスのような世界観のあるヘッドスパサロン

    ドライフラワーを飾ることで、空間にやわらかな表情が生まれ、サロン全体にやわらかな温度が加わりました。 落ち着いた空気の中に、ほっとする彩りが感じられます。

洗面・トイレ 施工前

トイレは、サロン側・事務所側のどちらからも使える動線に再設計しました。 男子トイレを撤去し、背面の壁を取り除くことで、玄関からの行き来ができるようになります。

洗面台工事

洗面台は位置を変えずに、既存をベースにしています。 この後の仕上げはN様がモルタル調で仕上げてくだいました。

トイレ配管工事

トイレの位置も変わることのない間取りとなっています。 給排水管調整し、新しく配管工事を行っています。 適切な勾配や経路を確保することで、日々の使用が快適になります。

洗面・トイレ 完成

  • After
    施主様とつくりあげた、南仏プロヴァンスのような世界観のあるヘッドスパサロン

    手洗いスペースも、サロンの空気に合わせて仕上がりました。グレーの漆喰と柔らかい光が、心地よく印象に残る空間を演出してくれています。

  • After
    施主様とつくりあげた、南仏プロヴァンスのような世界観のあるヘッドスパサロン

    シンプルながら、明るく清潔感のあるトイレです。ゴールドの小物を添えることで、空間に華やかさが生まれます。

玄関 施工前

工事前は、玄関ドアに住居らしさが残っていました。 店舗としての入口として、落ち着いた印象へと仕上げていきます。

ホール 施工前

施工前の玄関ホールは、日常の気配がそのまま残っている印象でした。 「玄関を開けた瞬間に、異空間へと切り替わるように」というご要望をもとに、 サロンにふさわしい、落ち着きと深みのある空気感 をつくっていきます。

ホール解体工事

玄関ホールの解体です。洗面・トイレへ繋がるように、 玄関収納が置かれていた壁を一部撤去します。 内装の仕上げが綺麗に行えるよう、下地を整えていきます。

玄関・ホール 完成

  • After
    施主様とつくりあげた、南仏プロヴァンスのような世界観のあるヘッドスパサロン

    サロンとしての入り口が完成しました! 白い外壁に、落ち着いた黒のドアが映える玄関に。 過度な装飾はせず、静かに迎え入れてくれる佇まいとしています。

  • After
    施主様とつくりあげた、南仏プロヴァンスのような世界観のあるヘッドスパサロン

    玄関ホールは、日常の気配からサロンの空気へと、やわらかく切り替わる場所として仕上げました。 グレーの漆喰が光を柔らかく受け、足を踏み入れた瞬間に、呼吸がひとつ深くなるような空間です。壁の一部には、下地のレンガをあえて見せるデザイン。こちらもN様が造られました!

  • After
    施主様とつくりあげた、南仏プロヴァンスのような世界観のあるヘッドスパサロン

    ディスプレイも、空間の雰囲気をつくる大切な要素です。選ぶものや置き方によって、サロン全体の印象がやさしく整います。

お客様の感想

こちらの希望に対して、難しい内容にも誠実に対応してくださり、
想像以上の仕上がりのサロンが完成しました。

毎日現場に足を運んでくださったので、とても安心してお任せできました。
たくさんの要望を、細かいところまで丁寧に聞いていただき、満足しています!

またリフォームの際には、ぜひお願いいたします
素敵な空間になって本当に良かったです!

コバーンからのコメント

川本 孝枝

今回のリフォームでは、お客様の「こうしたい」というイメージが明確にあり、
その思いや世界観を一緒に形にしていく過程がとても楽しいものでした。

素材選びや色の重なり、光の加減など、
ひとつひとつに丁寧に手をかけてつくられた空間です。

N様ご自身が仕上げに携われたことで、
サロンに「手仕事のあたたかさ」や「特別な時間」が宿ったように感じています。
素敵な空間づくりにご一緒できたこと、心より感謝しております。

ABOUT

リフォーム・コバーンが選ばれる理由

詳しくはこちら

COMPANY

RENOVATION

VOICE

電話する お問い合わせ 来店予約 WEB見積もり